
О проекте
Дом с мансардой
Дом 10,25×9,02 м с полноценной мансардой, около 185 м² общей площади. Доступен в двух комплектациях: теплоблок 400 мм (усиленный) или 300 мм (стандарт) — разница в бюджете 363 440 ₽.
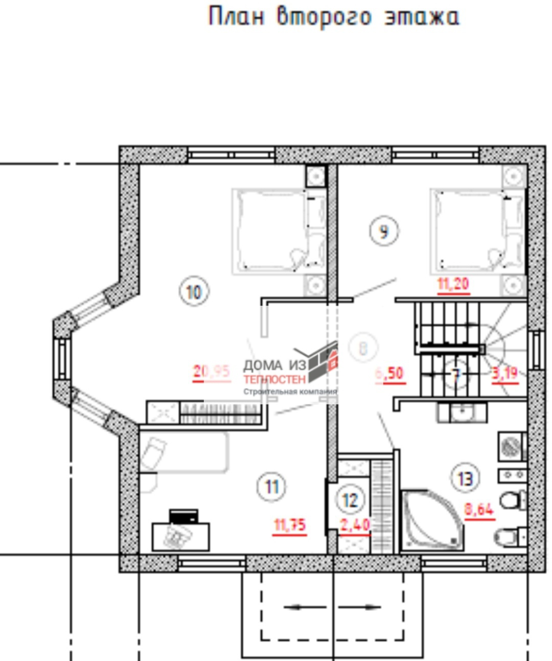
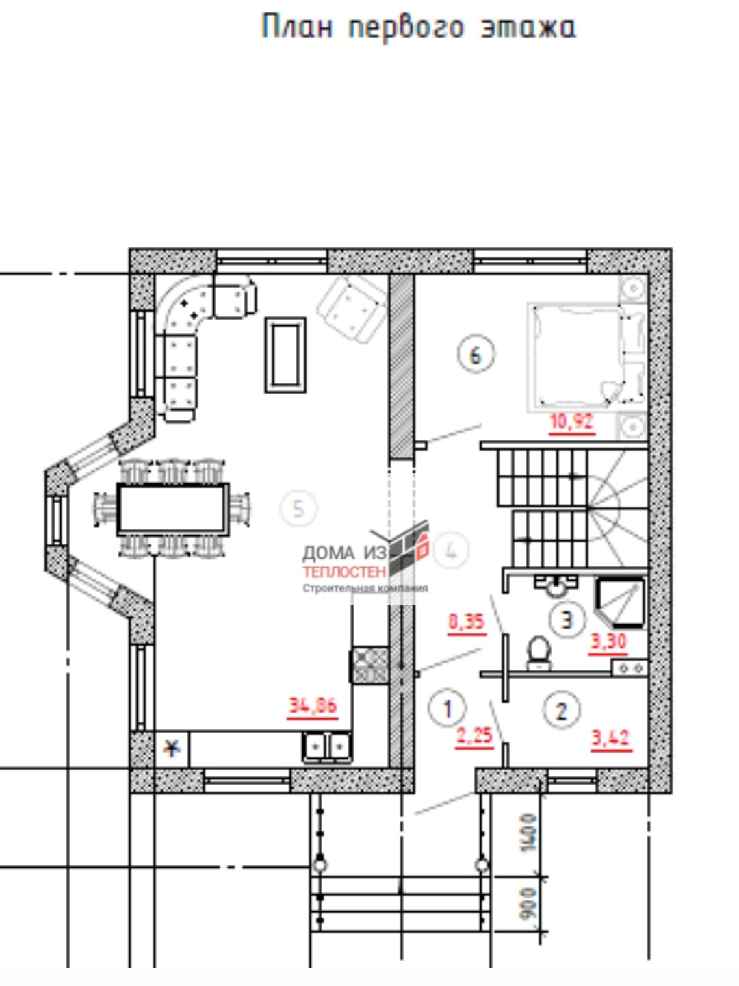
Первый этаж 3 м, мансардный с аттиковой стеной 1,6 м — высота даёт возможность комфортно разместить спальни и санузел на втором уровне. Универсальный формат, который одинаково подходит и под ПМЖ, и под загородную дачу.
Характеристики
Полные спецификации проекта
| Размер здания | 10,25 × 9,02 м |
| Общая площадь | ~185 м² |
| Этажность | 1 этаж + мансарда |
| Высота 1-го этажа | 3 м |
| Аттиковая стена | 1,6 м |
| Наружные стены | Теплоблок 400 мм (к1) или 300 мм (к2), цветной |
| Фундамент | Ростверк + монолитная плита / плита 300 мм |
| Перекрытия | Деревянные лаги / облегчённые плиты |
| Кровля | Металлочерепица |
| Срок возведения | 3 месяца |
| Стоимость (комплектация 1) | 4 622 750 ₽ |
| Стоимость (комплектация 2) | 4 259 310 ₽ |
Похожие проекты
Сопоставимые по площади
Частые вопросы
Про проект «Дом с мансардой»
Коробка дома площадью ~185 м² собирается за 3 месяца от фундамента до кровли. Отдельно считается период на подготовку участка (1–2 недели), подключение коммуникаций и отделку. С момента подписания договора до заезда — ориентир 5–6 месяцев, зимой немного дольше.
Заявка на проект
Заказать «Дом с мансардой»
Оставьте телефон — перезвоним в течение 15 минут, уточним участок и пришлём точную смету по этому проекту с учётом доставки и комплектации.
- Проект
- Дом с мансардой
- Площадь
- ~185 м²
- Этажность
- 1 этаж + мансарда
- Стены
- Теплоблок 300/400 мм
- Срок возведения
- 3 месяца
- Стоимость
- от 4 259 310 ₽


